HUREN
op het Slachthuisterrein
VERHUUR COMMERCIELE RUIMTEN
Slachthuisterrein Haarlem wordt een levendig en bijzonder terrein waar zowel gewoond als gewerkt wordt. Het werken concentreren we in het voormalige Slachthuis. Hier realiseren we een bonte mix aan ruimten, zodat we plek kunnen bieden aan een breed scala aan (creatieve) ondernemers die willen meehelpen aan het realiseren van een bijzondere plek.
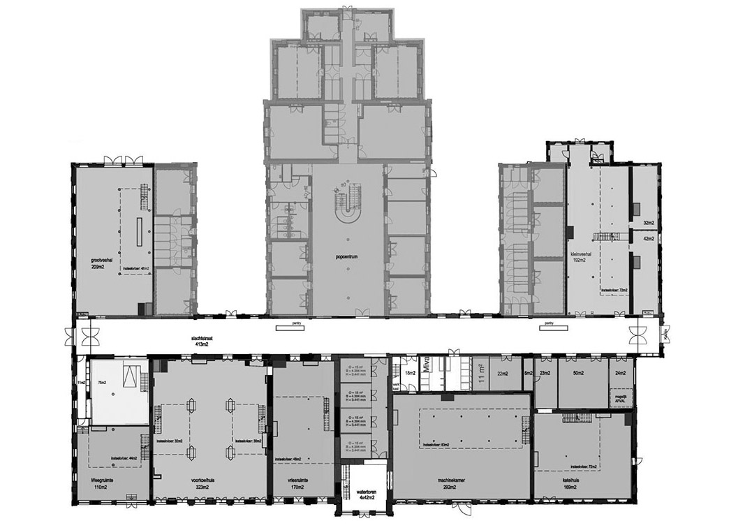
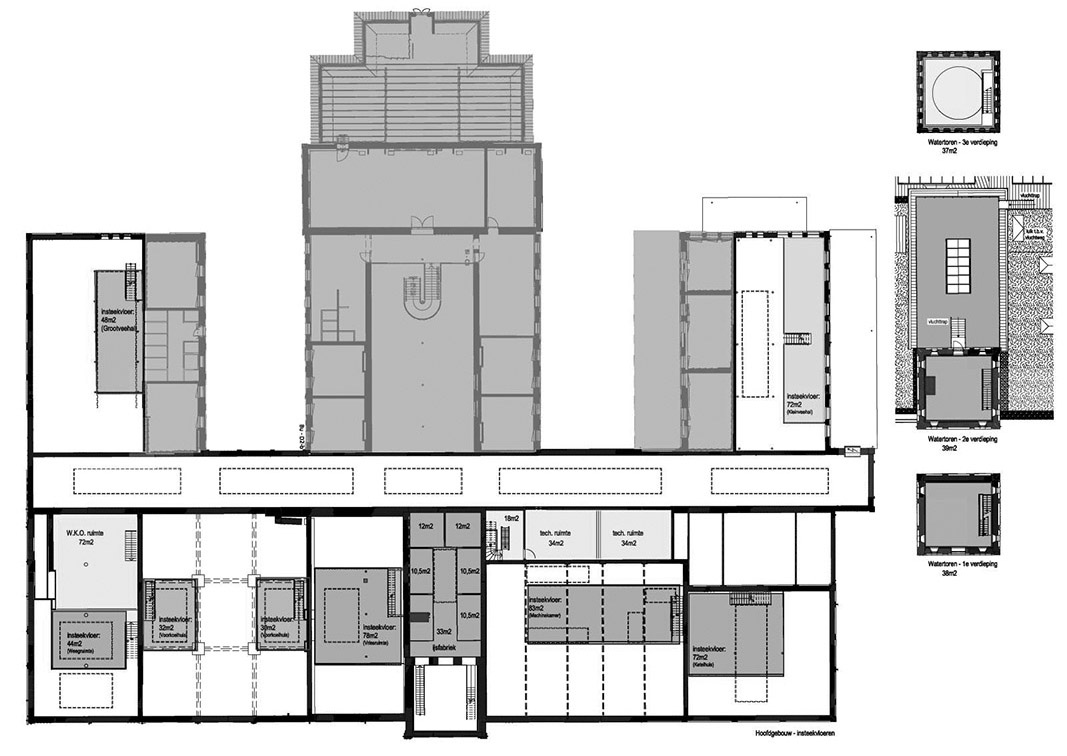
In totaal realiseren we ongeveer 5.000 m2 commerciële ruimten verdeeld over het slachthuis en de stallen, variërend in grootte van 25 tot ruim 500 m2. Naast het al geopende popcentrum is er ruimte voor 2 horecagelegenheden met terras, kantoorruimtes voor creatieve en dienstverlenende ondernemers en sport. Vrijwel alle ruimtes in het voormalige slachthuis komen uit op de gemeenschappelijke slachtstraat. Deze straat, bestraat in dezelfde stijl als het openbaar gebied, is overdag openbaar toegankelijk en wordt voorzien van statafels, een pantry en (kleine) terrassen voor de horeca. Hier kunnen alle ondernemers bij elkaar komen. Daarnaast leent de slachtstraat zich bij uitstek voor het organiseren van kleinschalige evenementen door de ondernemers tezamen. Deze plek moet het bruisende hart van het voormalige Slachthuis worden.
Volgens de huidige planning worden de (grotendeels)gerenoveerde ruimtes in het voormalige Slachthuis in het voorjaar van 2026 opgeleverd. Aan deze planning kunnen geen rechten worden ontleend.


DE ONTWIKKELAARS
De transformatie wordt gerealiseerd door ontwikkelcombinatie BPD en De Nijs.
BPD is een van de grootste gebiedsontwikkelaars van Europa en actief in Nederland en Duitsland. Sinds 1946 heeft BPD de bouw van ruim 350.000 woningen mogelijk gemaakt. BPD is onderdeel van Rabobank.
De Nijs Projectontwikkeling is nauw betrokken van eerste idee tot oplevering. Het bedrijf ontwikkelt op basis van prijsvragen, aanbestedingen of op eigen initiatief en werkt in Noord-Holland vaak samen met Bouwbedrijf De Nijs. Kwaliteit en een gedegen voorbereiding staan centraal in het ontwikkelproces.


